

施工前

施工後

施工前

施工後

施工前

施工後

施工前

施工後

施工前

施工後

施工前

施工後

施工前

施工後

施工後

施工前

施工後

施工前

施工後

施工前

施工後

施工前

施工後

施工前

施工後

施工前

施工後

施工前

施工後






























ご縁あって、オオサワ創研に足を運んでくださったN様ご夫婦。ご主人様のご両親から譲り受けた築38年の家を、家族が安心して暮らせる家にしたいと、ご相談くださいました。
■お客様からのご要望■
・ご主人の趣味であるバイク2台と車2台を停められる広い駐車場にしたい
・駐車スペースにはフェンスを設け、安全性を高めたい(L字コンクリの撤去)
・あたたかい家に住みたい
・収納を増やしたい
・足を延ばせる広いお風呂にしたい
・キッチンは対面キッチンを希望
・外観をオシャレにしたい
・お庭でバーベキューがしたい
■オオサワ創研からの提案■
約20年前にメンテナンスされていたN様邸。現地調査では床下調査、屋根診断、内装や水回りの状態などを細かく確認していきました。
【床下診断を実施】
床下を調査したところ、大きな問題はありませんでしたので、今回は、床下ホウ酸施工をご提案。
【屋根診断を実施】
雨漏れもなく、瓦の割れも見つかりませんでしたので、外壁と併せて再塗装するご提案。
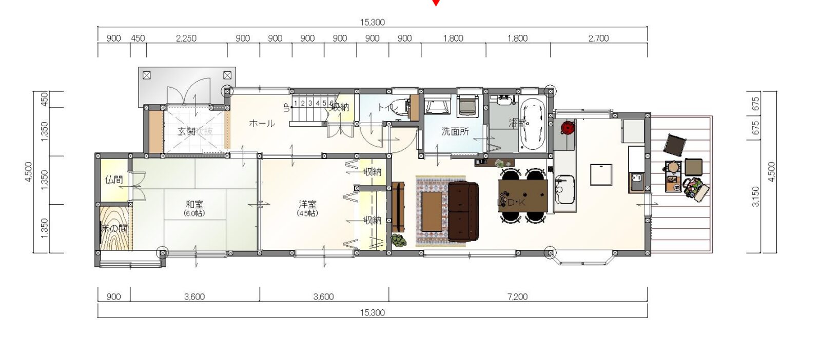
【庭を縮小し、駐車場を拡張。駐車場から家までの動線を快適に】
バイク、車ともにご希望の台数が停められるよう、既存の庭を小さくし、駐車場のスペースを確保していきました。また、駐車場から効率良く荷物が運べるよう、駐車場側に面していた掃き出し窓を勝手口に変更し、毎日の動線を快適にできる設計でご提案しました。
【休日も楽しめるウッドデッキを新設】
「お庭でバーベキューを楽しみたい」というご要望については、お庭に面するキッチンの間口(勝手口)にウッドデッキを設計。多目的に使っていただけるデッキは、暮らしが豊かになる設計のひとつです。
【ゆったりくつろげる浴室を叶えるための間取り変更】
「足を延ばせるお風呂にしたい」というご要望をもとに、浴室洗面スペースを広げる間取りでご提案。
【外観】
外壁と屋根には、再塗装をご提案。高耐久でデザイン性のある「水谷ペイント ナノコンポジット」を採用しました。マットな質感が魅力のオシャレな外観に仕上がっています。
当初のご予算を超えるリフォームとなりましたが、一度に工事をまとめることで、施工費を抑えることもできます。N様ご夫婦と何度も打ち合わせを重ねながら、追加工事を検討し、プランを煮詰めていきました。
■追加工事となったご要望内容■
・太陽光発電と蓄電池の新設
・テラス屋根の設置
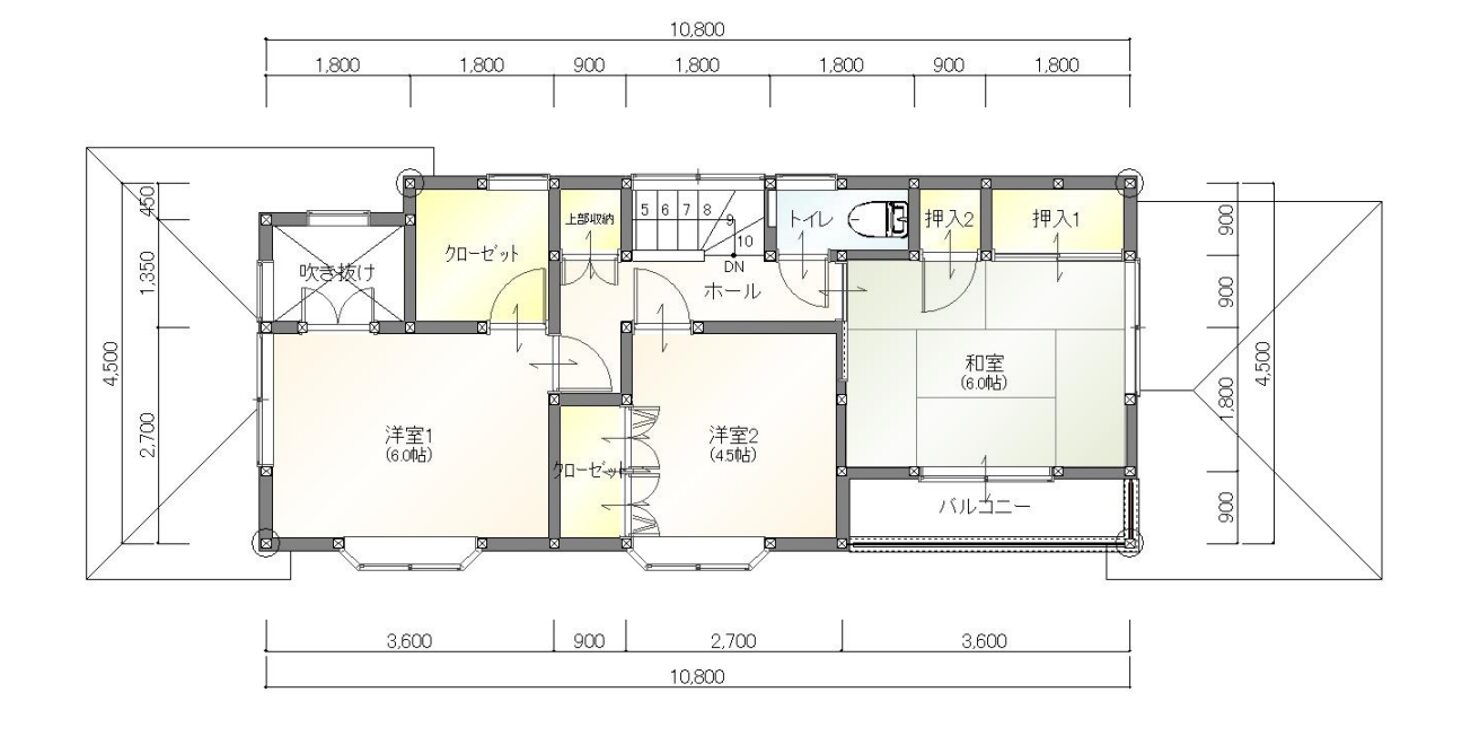
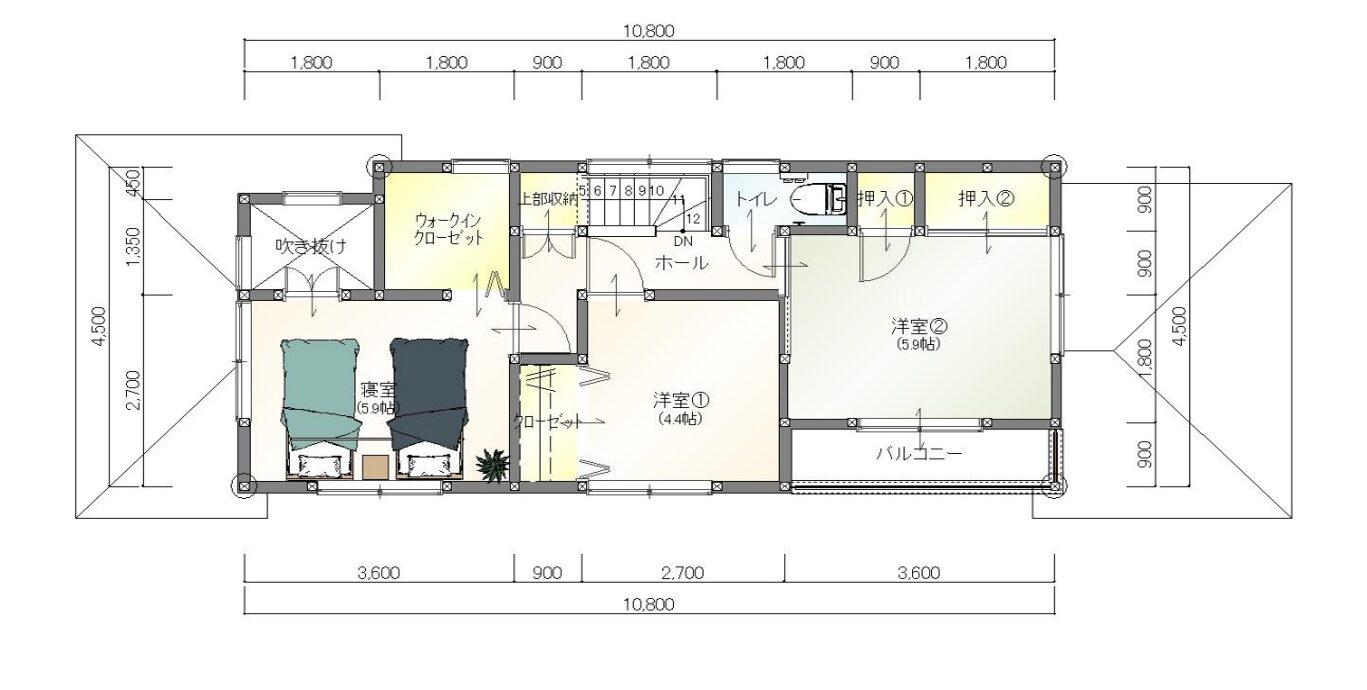
・2階の和室を洋室に変更
・外構のフェンス入れ替えと門扉の設置
ローンの申請等のお手伝いもさせていただきながら、これからの暮らしを見据えた、最適なリフォームプランをN様と一緒に考えていきました。
| 工期 | 約3ヵ月 |
|---|---|
| 価格 | その他 |
| 使用した製品 | 浴室/TOTO「サザナ」 キッチン/LIXIL「ノクト 」 床/イクタ銘木ラスティックフロア 室内ドア/NODA建具 サッシ/リクシルPGサッシ 屋根・外壁塗料/水谷ペイント「ナノコンポジット」 |
| 構造・間取り | 駐車場の拡張、ご家族との思い出のある柱や、聚楽壁等は出来るだけ残すなど、当初からN様ご夫婦のビジョンは明確でした。 |
【間取りを変更する、浴室洗面の壁や床を解体してみると…】
リフォームの場合、解体してみないと分からない部分があります。今回の解体では、屋根裏にかなりの数のスズメバチの巣を発見しました。幸い、巣立った後だったので危険性はありませんでしたが、リフォームを機にすべての巣を除去しました。また、柱にはシロアリ被害も見つかりましたので、被害箇所は撤去し、浴室と洗面室の床には防御処理を行いました。
窓はすべて二重サッシに交換し、あたたかい住まいを実現しています。
【担当者から】
N様邸は、弊社と近いこともあり、通常のお客様に比べてお顔を合わす機会が多かったです。また、詳細な打ち合わせにおいても、繰り返すことで、ご納得いただける設計プランと提案で、施工を進めることができました。接触回数が多かった分、お会いする度に「きれいになって良かった」とのお声がけを頂き、とても励みになりました。ありがとうございます。
CONTACT
お電話でのお問い合わせはもちろん、LINEやメールフォームでは24時間いつでもお問い合わせ可能です。
ご希望の方法で、住まいのことならどんなことでもお気軽にお問い合わせください。
