施工事例

cases

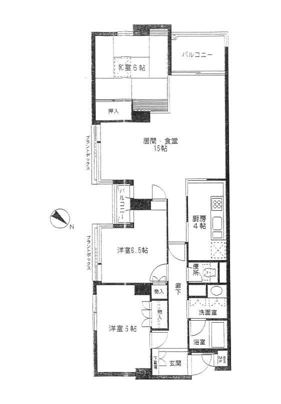
ナチュラル マリンテイスト

工期 約21日間
価格 1000万~1299万円

他のリノベーション施工事例

CONTACT

お気軽にお問い合わせください

お電話でのお問い合わせはもちろん、LINEやメールフォームでは24時間いつでもお問い合わせ可能です。
ご希望の方法で、住まいのことならどんなことでもお気軽にお問い合わせください。